top of page
Renovation and Interiors for Mrs.Uma & Mr.Sundar

CLIENT : MRS.UMA & MR.SUNDAR
PROJECT LOCATION : CHENNAI
TYPE : RESIDENCE , INTERIORS
BUILT -UP AREA : 1170 SFT
For the flooring in the common areas, handmade Athangudi tiles were used. It lends a rich colour and dramatic yet simple feel to the space. The ease to maintain it's glossy surface, the cost effective pricing of the tile, and supporting the Handmade small industry and spending for labour rather than material were also the factors to consider the choice of flooring.
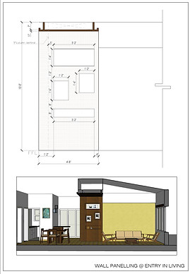
The teak wood, veneer and laminate finished furniture was kept minimal and clean, designed according to the usage/activities of the clients.
.







bottom of page
